Projektujemy wyjątkowe przestrzenie dla ambitnych wizji
Po prostu kreatywnie
Budownictwo mieszkaniowe? Przemysłowe? Drogowe? Sieciowe? Znalazłeś wspólny mianownik. Biuro architektoniczne ABI Studio.

Sprawdź nasze ostatnie realizacje
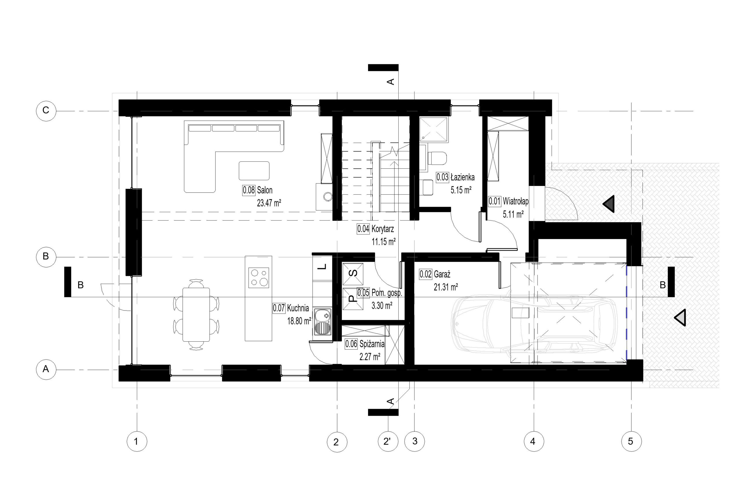
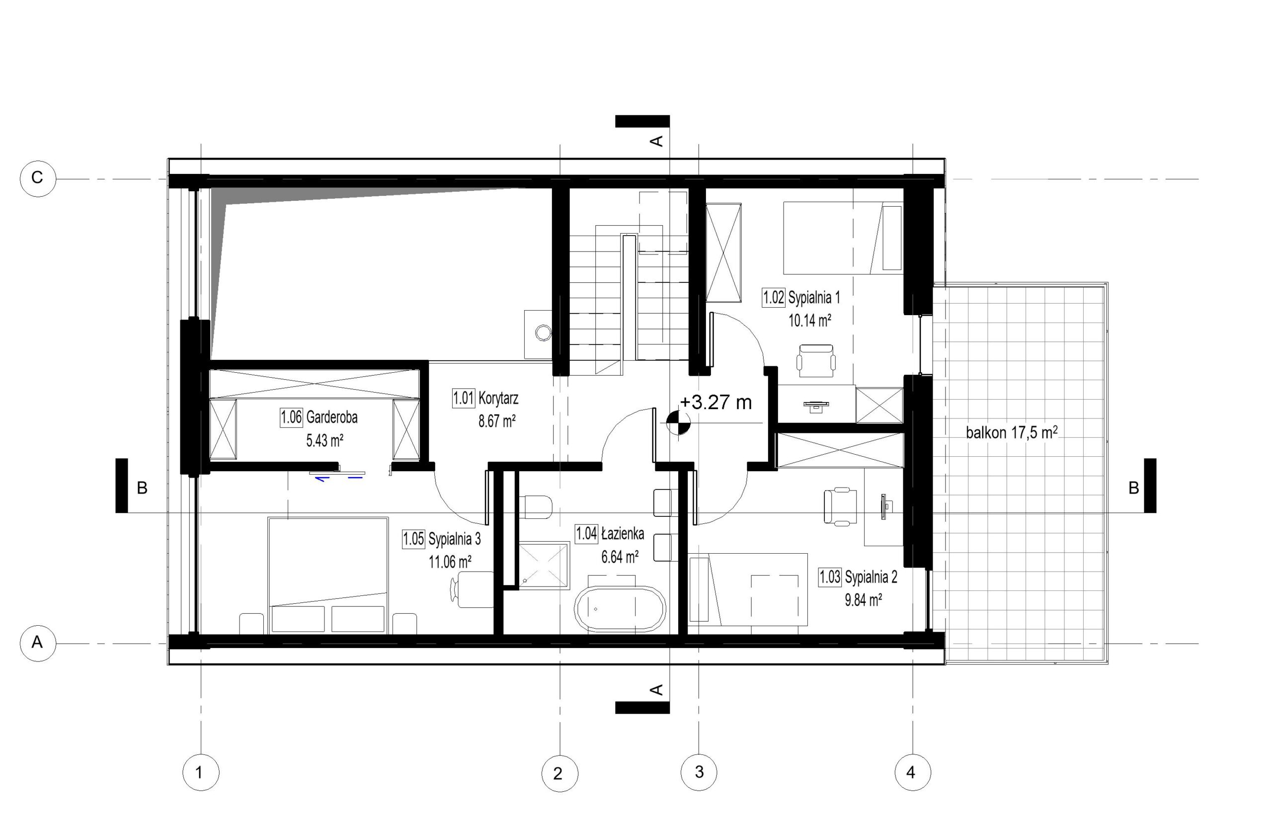
Dom Mikołów
Dom o prostej, zwartej bryle na planie prostokąta z symetrycznym, dwuspadowym dachem zlokalizowany na wąskiej działce. Bryła budynku nawiązuje do tradycyjnej zabudowy domów jednorodzinnych. Fragment garażu wychodzi poza podstawowy obrys domu tworząc balkon na piętrze. Budynek posiada prosty układ wewnątrz – strefa dzienna i gościnna znajdują się na parterze a strefa prywatna z sypialniami na piętrze. Salon został otwarty na dwie kondygnacje.
Zakład Doskonalenia Zawodowego
Opracowanie programu funkcjonalno-użytkowego dla przebudowy, rozbudowy i nadbudowy budynku ZDZ o konstrukcji stalowej i murowanej. Projekt zakłada całkowite rozebranie dachu i części piętra oraz wykonanie niezależnej żelbetowej konstrukcji szkieletowej nad istniejącym parterem – wraz z nowym stropem, stropodachem i poszerzonym obrysem piętra. Zakres prac obejmuje kompleksowe roboty budowlane: nadbudowę żelbetową, nowe ściany i stolarkę, ocieplenie i wykończenie elewacji, wykonanie portalu stalowego, modernizację wnętrz oraz zagospodarowanie terenu oraz w pełnym zakresie modernizację instalacji wewnętrznych, modernizacji przyłączy, systemów bezpieczeństwa, oświetlenia, HVAC oraz instalacji fotowoltaicznej. Opracowanie objęło analizę istniejącego obiektu (części administracyjnej i szkoleniowej), ocenę jego konstrukcji oraz przygotowanie wytycznych umożliwiających kompleksową i bezkolizyjną realizację inwestycji.
Nadbudowa budynku Filharmonii
Projektowana nadbudowa o funkcji biurowo-socjalnej. Nowa część podzielona na dwie strefy, które kaskadowo schodzą do południowej granicy budynku. Pierwsza część, wyższa, łączy się z istniejącym budynkiem na wysokości 2 piętra; druga część, niższa, nadbudowana jest bezpośrednio nad Salą Kameralną. Zwieńczeniem nadbudowy są zielone dachy. Nadbudowa styka się bezpośrednio z budynkiem mieszkalnym po wschodniej stronie uzupełniając pustą przestrzeń widoczną z poziomu ulicy.
Ścieżka edukacyjno-rekreacyjna
Celem koncepcji jest wzmacnianie roli kultury i zrównoważonej turystyki w rozwoju gospodarczym miasta Raciborza. Koncepcja przewiduje utworzenie ścieżek w miejscu istniejących przedeptów z niewielkim placem turystycznym przy baszcie, na którym zlokalizuje się przestrzenną makietę miasta, pulpit z informacją turystyczną, ławki oraz parking rowerowy wraz z nasadzeniem nowych roślin czy utworzeniem ogrodu deszczowego.
Wnętrze biurowe
Koncepcja aranżacji pomieszczeń w budynku biurowym na nowoczesny gabinet z wydzieloną częścią administracyjną. Wnętrza utrzymane zostały w jasnych, pastelowych odcieniach, które podkreślają lekkość przestrzeni i sprzyjają komfortowi użytkowników. Duże okna zapewniają naturalne doświetlenie pomieszczeń, a drewniane meble wprowadzają ciepło oraz elegancki, ponadczasowy charakter.
Park Kieszonkowy
Przedmiotem opracowania jest utworzenie ogólnodostępnego parku kieszonkowego w Dobieszowicach g. Bobrowniki. Projektowane zagospodarowanie terenu służyć będzie jako teren rekreacyjny ogólnodostępny z zielenią urządzoną dla mieszkańców.
Dom Kultury
Budynek z I poł. XIX w., zabytkowy, służący kiedyś za szpital dla ubogich. Opracowanie programu funkcjonalno-użytkowego opartego na termomodernizacji obiektu przy użyciu tynków ciepłochronnych, wymianie okien, renowacji drzwi i ociepleniu stropu poddasza. Dodatkowo założono we wnętrzu częściowe prace remontowe. Całość prac w uzgadniana z Wojewódzkim Urzędem Ochrony Zabytków.
Raciborskiego Centrum Rehabilitacji Osób Niepełnosprawnych
Opracowanie programu funkcjonalno-użytkowego dla termomodernizacji budynku Raciborskiego Centrum Rehabilitacji Osób Niepełnosprawnych. Zakres obejmował docieplenie fundamentów, ścian i dachów, wymianę stolarki, modernizację systemu grzewczego i c.w.u., a także wymianę windy oraz inne prace niezbędne do pełnego odnowienia obiektu. Celem projektu było podniesienie standardu energetycznego budynku, poprawa komfortu użytkowników oraz dostosowanie przegród i instalacji do obowiązujących wymagań technicznych. W ramach opracowania zweryfikowaliśmy rozwiązania, dobraliśmy materiały i określiliśmy wytyczne wykonawcze.
Konkurs na Dom Kultury
Koncepcja architektoniczna budynku zeroemisyjnego, projektowanego w oparciu o analizę nasłonecznienia, ukształtowania terenu i dominujących kierunków wiatru. W projekcie przewidziano duże przeszklenia południowe, ruchome żaluzje, instalację fotowoltaiczną o mocy 200 kW z magazynem energii oraz system wykorzystania wody deszczowej. Wszystkie przegrody zaprojektowano tak, aby spełniały standardy dla obiektów o niemal zerowym zużyciu energii. Forma budynku opiera się na zróżnicowanych wysokościach brył układających się spiralnie, co umożliwia maksymalne wykorzystanie elewacji pod panele PV i podkreśla część widowiskową obiektu. W układzie funkcjonalnym zaplanowano elastyczne sale wielofunkcyjne, studio nagrań, zaplecze sceniczne i strefy administracyjne, a całe założenie uzupełnia przemyślane zagospodarowanie terenu z podziałem na strefę wejściową, rekreacyjną i parkingową.
Modernizacja szybowej wieży wyciągowej
Opracowanie części architektonicznej modernizacji szybowej wieży wyciągowej szybu 2.2 dla Lubelskiego Węgla „Bogdanka” S.A. Zakres prac obejmował przygotowanie dokumentacji dotyczącej nowych pomostów do wsiadania, przebudowy trzonu wieży oraz niezbędnych zmian konstrukcyjnych dostosowujących obiekt do transportu ludzi dwoma naczyniami. Uwzględniono również modyfikacje schodów, drabin i przepierzeń oraz koordynację rozwiązań z innymi branżami. Projekt realizowano jako podwykonawca MWM Elektro Sp. z o.o., we współpracy Elektrometal S.A. oraz innymi podwykonawcami.
ABI Studio — architektura, budownictwo, innowacje
Biuro ABI Studio prowadzi pełen zakres usług projektowych w branży architektonicznej, konstrukcyjnej oraz instalacyjnej. Wykonujemy nadzory autorskie i inwestorskie we wszystkich branżach, pełnimy funkcję inwestora zastępczego oraz kierownika budowy.
Posiadamy skaner 3D Leica ScanStation C5, który analizuje obiekt i otoczenie świata rzeczywistego oraz gromadzi dane na temat jego kształtu, oraz wyglądu. Zebrane dane są wykorzystane do skonstruowania cyfrowych modeli trójwymiarowych.
Każdy projekt jest opracowany w technice BIM, która pozwala uzyskać model zapisany cyfrowo, przedstawiający odzwierciedlenie fizycznych i funkcjonalnych właściwości obiektu budowlanego, wizualizację projektu oraz wirtualny spacer po obiekcie.

Łukasz Kruczyński
Nasz zespół to doświadczone i kreatywne osoby. Każda posiadająca własną wizję i własną koncepcję w tworzeniu i nadawaniu formy. Przygotowane przez nas opracowania stanowią kompleksową całość obejmującą wszystkie procesy branżowe oraz formalności administracyjne niezbędne do rozpoczęcia realizacji przedsięwzięcia budowlanego.
Bierzemy czynny udział w procesie realizacji większości naszych projektów. Z upoważnienia inwestorów prowadzimy i nadzorujemy inwestycje, weryfikujemy dokumenty techniczne, oceny, opinie oraz ekspertyzy, prowadzimy doradztwo techniczne oraz weryfikujemy stadium wykonywalności inwestycji. Wykonujemy pełne kosztorysy oraz przedmiary.
Bądźmy
w kontakcie


